Description
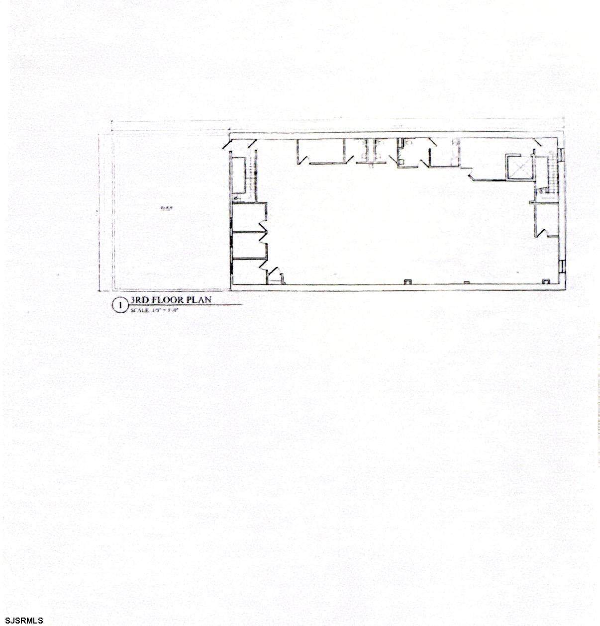
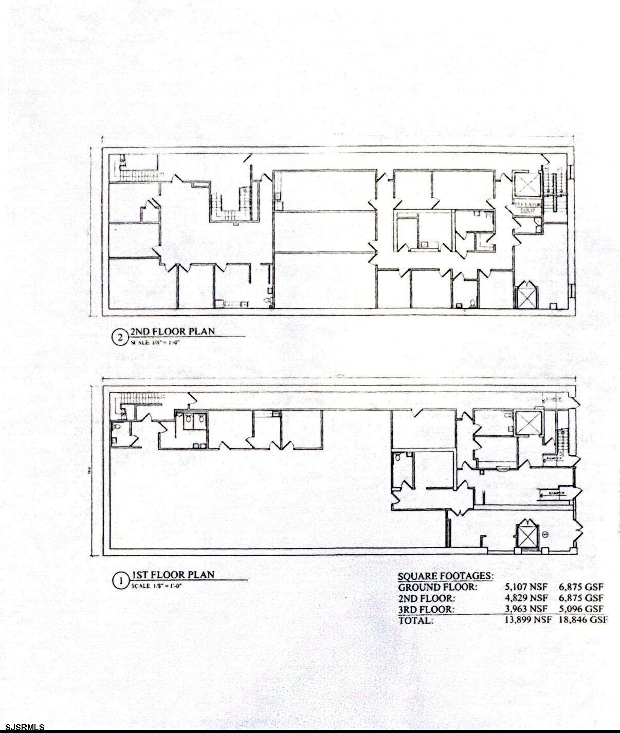
Great opportunity has come to the AC market! 2718-2720 Atlantic Avenue which is a three story commercial space office building located in the Opportunity Zone, boasting a little over 18,800 gross square feet along with a parking lot for 15-20 vehicles on South California Avenue. The property has a newer roof, brand new HVAC systems installed summer of 2025, elevator service to all floors, two stairwells and is currently vacant. This is a rare opportunity for a possible residential apartment conversion due to the size, parking and zoning/redevelopment. The building's efficient floorplate depth, elevator service and vertical circulation core support a double-loaded corridor layout, allowing for a possible 16-22 unit multifamily conversion. Plenty of possibilities here, super easy to show the property!!
-
0BEDS
-
N/AACRES
-
0BATHS
-
01/2 BATHS
School Ratings & Info
Description
Great opportunity has come to the AC market! 2718-2720 Atlantic Avenue which is a three story commercial space office building located in the Opportunity Zone, boasting a little over 18,800 gross square feet along with a parking lot for 15-20 vehicles on South California Avenue. The property has a newer roof, brand new HVAC systems installed summer of 2025, elevator service to all floors, two stairwells and is currently vacant. This is a rare opportunity for a possible residential apartment conversion due to the size, parking and zoning/redevelopment. The building's efficient floorplate depth, elevator service and vertical circulation core support a double-loaded corridor layout, allowing for a possible 16-22 unit multifamily conversion. Plenty of possibilities here, super easy to show the property!!
© 2026 South Jersey Shore Regional MLS. All rights reserved. IDX information is provided exclusively for consumers' personal, non-commercial use and may not be used for any purpose other than to identify prospective properties consumers may be interested in purchasing. Information is deemed reliable but is not guaranteed accurate by the MLS or The Oceanside Realty Team | Keller Williams Jersey Shore. Properties marked with the Broker Reciprocity icon or thumbnail icon (a small house) are provided courtesy of the South Jersey Shore Regional MLS Broker Reciprocity Database. Data last updated 2026-03-06T23:49:53.527.

Listing information © 2026 South Jersey Shore Regional MLS.